尼崎市「武庫之荘」のお部屋探し
ホーム > 当社施工の販売事例 > エターナルライフR002

エターナルライフR002

物件概要

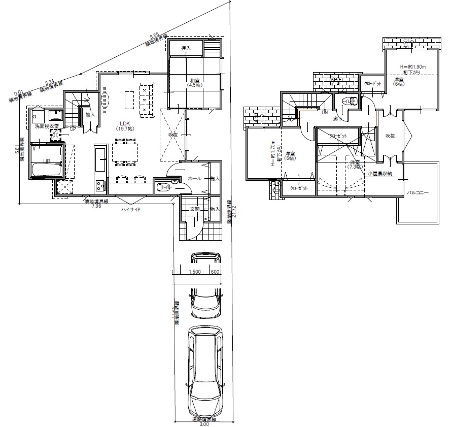
図面・間取図

物件写真

お部屋探しは当店で

ピタットハウス武庫之荘店

ピタットハウス武庫之荘店の店内

営業時間 10:00~19:30
TEL 06-6438-3900
フリーダイヤル 0800-200-3901
FAX 06-6438-2800
兵庫県尼崎市南武庫之荘1丁目13-23
ハイエスト武庫之荘 1階
兵庫県知事(7)第203008号

  • アクセスマップを見る
  • 会社概要を見る
店長のご紹介
ピタットハウスCMギャラリー
  • ピタットハウス武庫之荘店facebookサイト
  • 武庫之荘店スタッフブログ
  • 尼崎市の学校区一覧
  • 阪急武庫之荘駅時刻表
  • 阪神バス時刻表

ピタットハウス武庫之荘店からのごあいさつ

これまで地元密着でつちかった豊富な物件情報量をもとにお客様の立場にたって、よりご希望に合った物件を必ずご紹介いたします。武庫之荘店はまかせて安心!をモットーにスタッフ一丸となって尼崎市・伊丹市の賃貸物件・仲介・運営管理をやっています。アットホームな雰囲気でお客様をお迎えします!インターネットには掲載されていない物件、最新情報、住宅に関するお問い合わせ、お気軽にお待ちしております。 店舗・事務所探しも当社にお任せ下さい!

pagetop

メールで
お問い合せ
電話で
お問い合せ